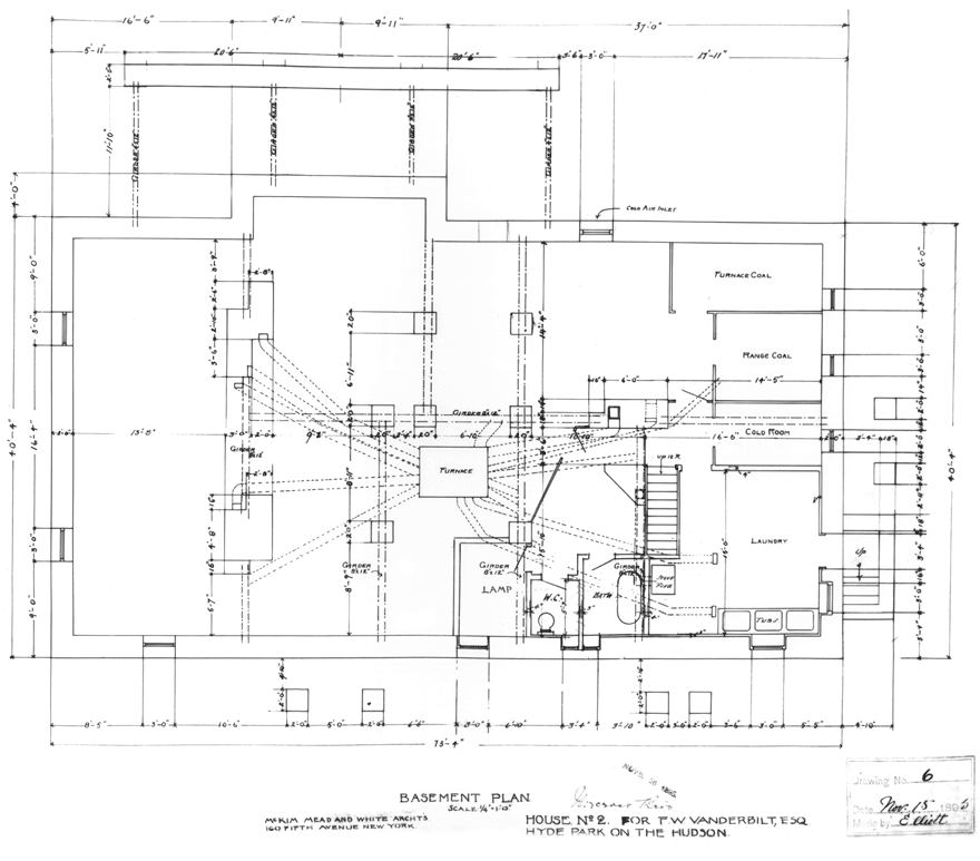
Basement |
First Story
|
Second Story
|
Attic
|
Transverse Section
|
North Elev.
|
South Elev.
|
East Elev.
|
West Elev.
Howard Mansion
»
Architecture
» Basement Plan