Basement
|
First Story
|
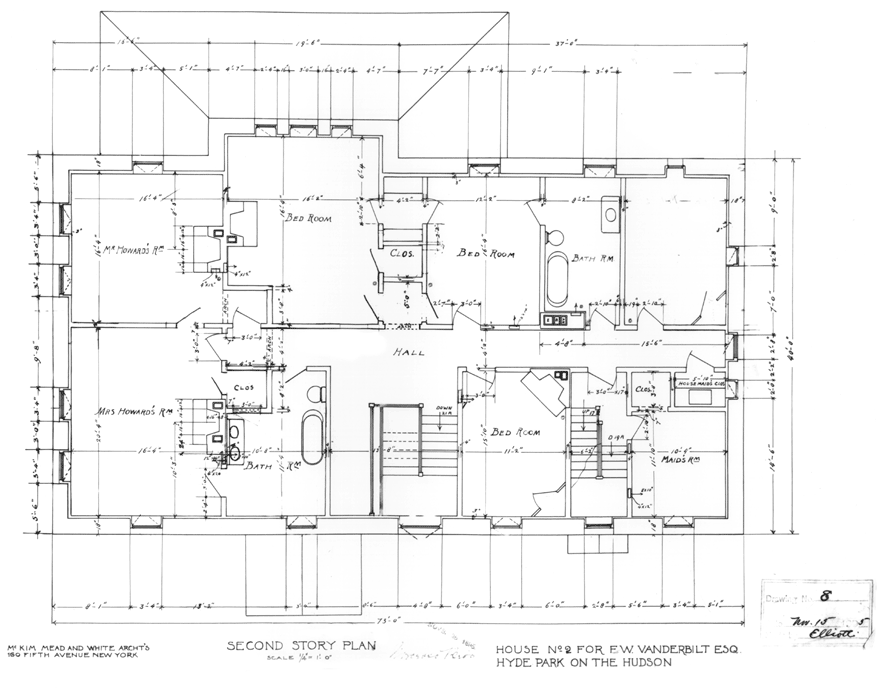
Second Story |
Attic
|
Transverse Section
|
North Elev.
|
South Elev.
|
East Elev.
|
West Elev.
Howard Mansion
»
Architecture
» Second Story Plan